服务热线:
4006-598-119
您的位置: 首页>>江西技术文章

江西GST-LD-8300B输入模块(消防监视模块)接线安装图

发布日期:2022-06-18 12:11:46   浏览量:12206

海湾GST-LD-8300B输入模块(消防监视模块)接线安装图:

海湾GST-LD-8300B输入模块(消防监视模块)


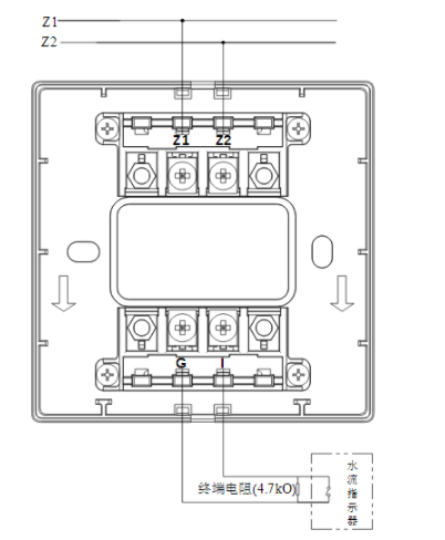
  Z1、Z2:接控制器两总线,无极性;


  I、G:与设备的无源常开触点(设备动作闭合报警型)连接;也可通过电子编码器设置为常闭输入。


1、模块与具有常开无源触点的现场设备(以水流指示器为例)连接方法如下图所示。

江西海湾消防GST-LD-8300B输入模块常开无源触点接线图




2、模块与具有常闭无源触点的现场设备(以信号阀为例)连接方法如下图所示。

海湾GST-LD-8300B输入模块常闭无源触点接线图




在线咨询 联系方式 二维码

服务热线

4006-598-119

扫一扫,关注我们